The Bennett
Main Floor
682 sq ft
Upper Floor
682 sq ft
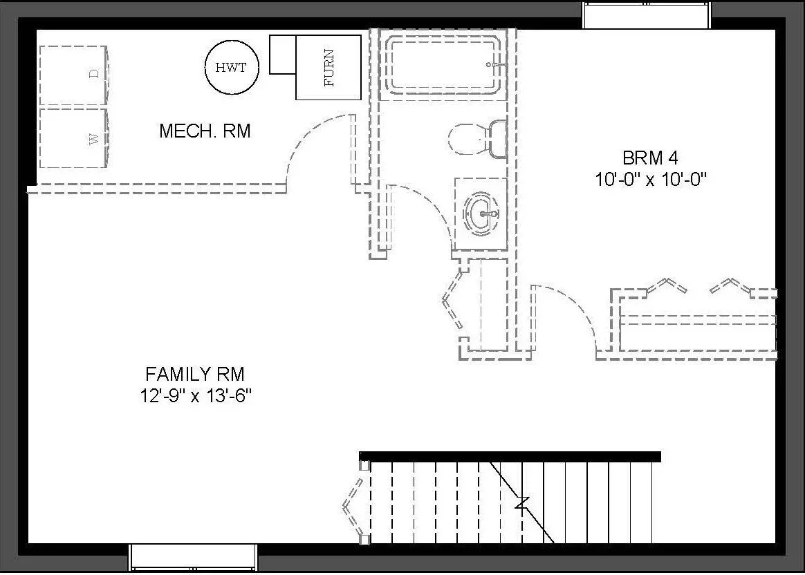
Lower Floor Future Development
449 sq ft
Bennett
1364 sq ft
Home Features
3 Bedrooms
2.5 Bathrooms
Key Features
2-Storey Laned Home
Covered front veranda welcomes you into the open-concept main floor
Well-appointed kitchen boasts center island and pantry
Second closet for storage at rear door
1/2 Bath away from main living areas for privacy
Bright primary bedroom features a walk-in closet and ensuite
3 bedrooms all on the same floor
4pc appliance package
449 sqft on lower floor for future development, ideal for an additional bedroom, bathroom, family room, storage space, and laundry area
10 x 10 Rear deck off the dining area
Double car rear gravel parking pad
