57 LINCOLN STREET
3 Bedrooms | 2.5 Bathrooms | bonus room | 1707 sq ft
Beacon Hill, Sylvan Lake
THE PAXTON
It’s easy to spend more time at the lake with a brand new home in Beacon Hill! A community built for families: with Beacon Hill Elementary School and Mightypals Daycare both right in your neighbourhood!
One of our most popular 2-storey home designs; ideal for entertaining and everyday family life with the open-concept main floor
Bright kitchen features quartz countertops, center island, and walk-in pantry
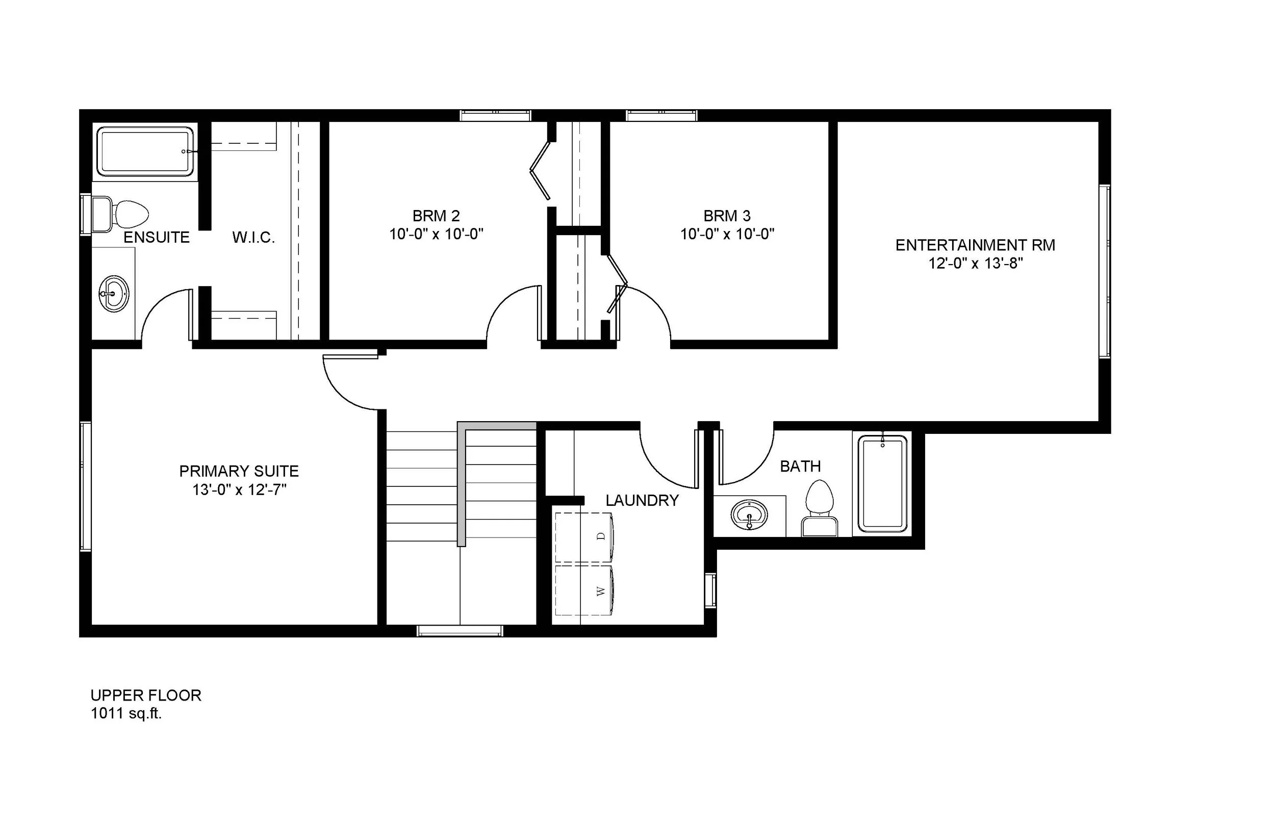
Generous-sized primary bedroom with ensuite and joint large walk-in closet
Spacious upper floor laundry room, conveniently located near all the bedrooms
Entertainment room upstairs, perfect for an office space, playroom, or family room
458 sqft of additional space on lower floor for future development; great for a fourth bedroom, full bathroom, and great-sized rec room
10 x 10 Rear deck
22 x 20 Attached garage
Offered at $567,900
This home is currently under construction and estimated for possession in May. *Note, the advertised rendering is a stock model and for visual purposes only. 57 Lincoln Street will be similar, but not identical.
FIRST TIME HOME BUYERS GST REBATE IN EFFECT!
“The FTHB GST Rebate is available to qualifying purchasers if the agreement of purchase and sale for the home was entered into with the builder on or after March 20, 2025 and before 2031. If ownership was transferred to the buyer before the proposed legislation received Royal Assent, the buyer will need to apply separately to the CRA for the FTHB GST/HST rebate. Now that the legislation has received Royal Assent, builders will be able to credit the FTHB GST/HST rebate to their buyers using the CRA forms going forward.” More Information Here
